Foto leveres af Google Street View og kan være upræcist:
Butik til leje, Odense C, Store Gråbrødrestræde
Store Gråbrødrestræde, 5000 Odense C- Butik til leje
- Ca. 110 m2
- Ca. 16.000 kr. per måned
Store Gråbrødrestræde, 5000 Odense C
- Butik til leje
- Ca. 110 m2
- Ca. 16.000 kr. per måned
Få mere info
Du linkes til en anden portal, som evt. kan kræve betaling eller oprettelse
Butik til leje, Odense C, Store Gråbrødrestræde
Butik til leje i 5000 Odense C
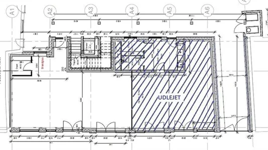
Hermed udbydes butikslejemål i nyopført ejendom på Store Gråbrødrestræde.
Lejemålet andrager ca. 112 m².
Butikken har et stort glasparti ud mod gaden samt en dobbelt glasdør. Den færdige aptering aftales med lejer, og der er derfor mulighed for at præge indretningen så den passer til netop din butik.
Af nærmeste naboer kan nævnes Design Cykler, H&M, Café Skt. Gertrud, Café Kræz, Amy's Bar & Winehouse og Visit.
Sagsprospektet vil blive sendt til din mail, men du kan også se det med det samme på nedenstående link.
Tak for din henvendelse. Din besked vil blive behandlet hurtigst muligt.
Vi har noteret dine ønsker.
Vi kontakter dig, så snart der er en ejendom, som matcher dine kriterier.
Tak for din henvendelse.
Vi kontakter dig snarest muligt for at aftale dato og tidspunkt for vurderingen.
Lejemålet andrager ca. 112 m².
Butikken har et stort glasparti ud mod gaden samt en dobbelt glasdør. Den færdige aptering aftales med lejer, og der er derfor mulighed for at præge indretningen så den passer til netop din butik.
Af nærmeste naboer kan nævnes Design Cykler, H&M, Café Skt. Gertrud, Café Kræz, Amy's Bar & Winehouse og Visit.
Tak for din interesse i ejendommen
Sagsprospektet vil blive sendt til din mail, men du kan også se det med det samme på nedenstående link.
Tak for din henvendelse. Din besked vil blive behandlet hurtigst muligt.
Få besked om nye ejendomme før andre
Tak for din tilmelding
Vi har noteret dine ønsker.
Vi kontakter dig, så snart der er en ejendom, som matcher dine kriterier.
Få en uvildig vurdering af din erhvervsejendom
Tak for din henvendelse.
Vi kontakter dig snarest muligt for at aftale dato og tidspunkt for vurderingen.
Information og data
Dette butikslejemål ligger på Store Gråbrødrestræde i Odense C. Odense C har postnummeret 5000, og ligger i kommunen Odense, som ligger i Odense. Lokalet er i alt 112 m2. Lejepris: Ca. 192.000 kr. per år.