Foto leveres af Google Street View og kan være upræcist:
Butik til leje, Aalborg Centrum,
, 9000 Aalborg- Butik til leje
- 149 m2
- 22.900 kr. per måned
, 9000 Aalborg
- Butik til leje
- 149 m2
- 22.900 kr. per måned
Få mere info
Du linkes til en anden portal, som evt. kan kræve betaling eller oprettelse
Butik til leje, Aalborg Centrum,
Butik til leje i 9000 Aalborg
Gågade lejemål på hjørnet af Bredegade Torv/Nørregade med stor synlighed
Attraktivt beliggende gågadelejemål på hjørnet af Nørregade og Bredegade Torv – et område karakteriseret ved et godt kundeflow og aktivitetsniveau. Bredegade Torv kommer i naturlig forlængelse af gågaden Algade. Omkring lejemålet ligger flere kædebutikker, herunder Kaffebaren, Flying Tiger of Copenhagen samt ONLY. Lejemålet har gennem de seneste år været anvendt til café/kaffebar – men kan bruges til andre typer af detailhandel, kontakt udlejer for nærmere information herom.
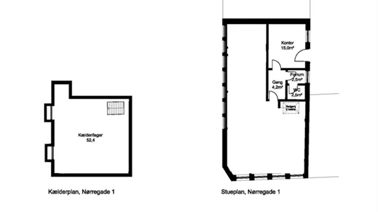
Lejemålet har et samlet areal på i alt ca. 150 kvm fordelt på ca. 97 kvm i stueplan samt ca. 52 kvm godt lagerlokale i kælderen. Fra butikslokalet i stueplan er der adgang til personalefaciliteter samt kontor/lager. Butikken har indgangsdør i niveau med gågaden samt flotte udstillingsvinduer mod Bredegade Torv og Nørregade. Udenfor lejemålet er der mulighed for udstilling af gadevarer.
Der er installeret aircon og varmetæppe i lejemålet.
Fra Bredegade Torv er der forbindelse til gågaderne Algade, Nørregade samt Slotsgade hvor bl.a. Føtex har butik.
I nærområdet findes gode parkeringsmuligheder – såvel tidsbegrænset som betalingspladser.
Magasin har til huse i Friis Shoppingcenter, hvor nærværende lejemål er placeret umiddelbart mellem 2 af Magasins hovedindgange, hvilket gør området endnu mere attraktivt.
– Hjørneplacering med stor synlighed
– Attraktiv gågadeplacering
– Tæt på Magasin og Friis
– Mange anvendelsesmuligheder
Attraktivt beliggende gågadelejemål på hjørnet af Nørregade og Bredegade Torv – et område karakteriseret ved et godt kundeflow og aktivitetsniveau. Bredegade Torv kommer i naturlig forlængelse af gågaden Algade. Omkring lejemålet ligger flere kædebutikker, herunder Kaffebaren, Flying Tiger of Copenhagen samt ONLY. Lejemålet har gennem de seneste år været anvendt til café/kaffebar – men kan bruges til andre typer af detailhandel, kontakt udlejer for nærmere information herom.
Lejemålet har et samlet areal på i alt ca. 150 kvm fordelt på ca. 97 kvm i stueplan samt ca. 52 kvm godt lagerlokale i kælderen. Fra butikslokalet i stueplan er der adgang til personalefaciliteter samt kontor/lager. Butikken har indgangsdør i niveau med gågaden samt flotte udstillingsvinduer mod Bredegade Torv og Nørregade. Udenfor lejemålet er der mulighed for udstilling af gadevarer.
Der er installeret aircon og varmetæppe i lejemålet.
Fra Bredegade Torv er der forbindelse til gågaderne Algade, Nørregade samt Slotsgade hvor bl.a. Føtex har butik.
I nærområdet findes gode parkeringsmuligheder – såvel tidsbegrænset som betalingspladser.
Magasin har til huse i Friis Shoppingcenter, hvor nærværende lejemål er placeret umiddelbart mellem 2 af Magasins hovedindgange, hvilket gør området endnu mere attraktivt.
– Hjørneplacering med stor synlighed
– Attraktiv gågadeplacering
– Tæt på Magasin og Friis
– Mange anvendelsesmuligheder
Information og data
Dette butikslejemål ligger på Nørregade i Aalborg Centrum. Aalborg Centrum har postnummeret 9000, og ligger i kommunen Aalborg, som ligger i Aalborg. Lokalet er i alt 149 m2. Lejepris: 274.800 kr. per år.