Foto leveres af Google Street View og kan være upræcist:
Butik til leje, Aalborg Centrum, Bispensgade
Bispensgade, 9000 Aalborg- Butik til leje
- 48 m2
- 4.583 kr. per måned
Bispensgade, 9000 Aalborg
- Butik til leje
- 48 m2
- 4.583 kr. per måned
Få mere info
Du linkes til en anden portal, som evt. kan kræve betaling eller oprettelse
Butik til leje, Aalborg Centrum, Bispensgade
Butik til leje i 9000 Aalborg
Centralt beliggende klinik eller mindre kontorlokale udlejes i Aalborg centrum
Lejemålet er renoveret og er beliggende i en flot velvedligeholdt ejendom.
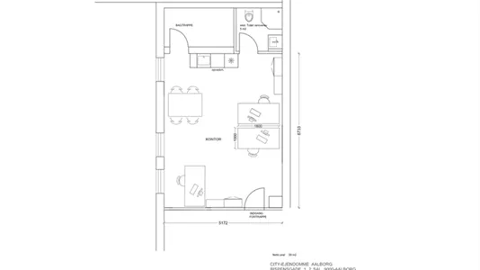
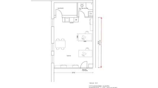
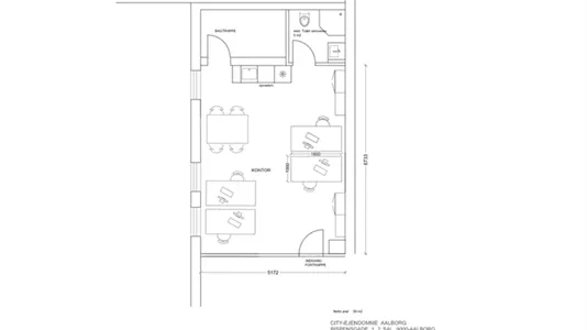
Kontorlejemålet indeholder:
Stue/alrum, tekøkken med opvaskemaskine samt køle/frysskab. Toilet med separat bruseniche, faste skabe samt indbygget spejl. Flere anvendelsesmuligheder såsom kliniklokale.
Der er adgang til lokalet via. Bispensgade.
Kontorlokalet har et bruttoareal på 48 m2 ekskl. adgangsarealer. Lejemålets samlede bruttoareal udgør 78 m2 inkl. adgangsarealer.
Huslejen er med tillæg af moms da lejemålet er momsregistreret.
Lejemålet overtages nymalet og rengjort.
Udover den årlige leje betales der andel i ejendommens driftsudgifter samt lejemålets andel af forbrugsudgifter.
Der er mulighed for overtagelse pr. 01.04.25 eller efter nærmere aftale.
Ved spørgsmål eller interesse ring og forhør nærmere hos direktør Hans Andersen.
Fastnet. Tlf. eller direkte.
Lejemålet er renoveret og er beliggende i en flot velvedligeholdt ejendom.
Kontorlejemålet indeholder:
Stue/alrum, tekøkken med opvaskemaskine samt køle/frysskab. Toilet med separat bruseniche, faste skabe samt indbygget spejl. Flere anvendelsesmuligheder såsom kliniklokale.
Der er adgang til lokalet via. Bispensgade.
Kontorlokalet har et bruttoareal på 48 m2 ekskl. adgangsarealer. Lejemålets samlede bruttoareal udgør 78 m2 inkl. adgangsarealer.
Huslejen er med tillæg af moms da lejemålet er momsregistreret.
Lejemålet overtages nymalet og rengjort.
Udover den årlige leje betales der andel i ejendommens driftsudgifter samt lejemålets andel af forbrugsudgifter.
Der er mulighed for overtagelse pr. 01.04.25 eller efter nærmere aftale.
Ved spørgsmål eller interesse ring og forhør nærmere hos direktør Hans Andersen.
Fastnet. Tlf. eller direkte.
Information og data
Dette butikslejemål ligger på Bispensgade i Aalborg Centrum. Aalborg Centrum har postnummeret 9000, og ligger i kommunen Aalborg, som ligger i Aalborg. Lokalet er i alt 48 m2. Lejepris: 55.000 kr. per år.